Quadrilocale in vendita

Gorlago, Via Montecchi
€ 650.000
4 locali 4 locali
277 Mq 277 Mq
2 bagni 2 bagni

Quadrilocale in vendita

Gorlago, Via Montecchi

Descrizione annuncio

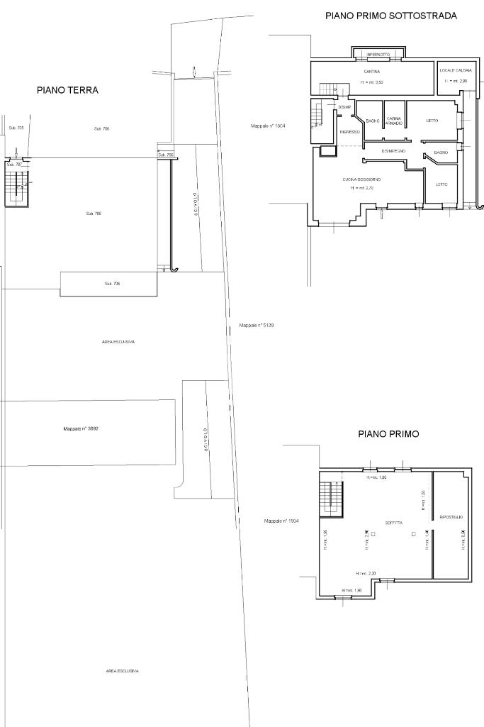
In una delle posizioni più affascinanti di Gorlago, nella ricercata zona Montecchi e a pochi passi dalla suggestiva chiesetta di Siotto Pintor, proponiamo una porzione di casa caratterizzata da una vista panoramica.

La proprietà gode di ingresso carrale e pedonale completamente indipendente, che conduce al fondo della strada privata dove si trovano comodi parcheggi esclusivi, una casetta degli attrezzi e l’accesso al terreno di proprietà, ideale per chi desidera spazio verde, orto o semplicemente un’area esterna da vivere in tranquillità.

In posizione sopraelevata rispetto alla zona d’ingresso si sviluppa l’abitazione principale, completamente ristrutturata e impreziosita da ambienti luminosi e ben distribuiti.
La zona giorno, ampia e accogliente, è resa unica da un grande finestrone che si affaccia direttamente sul panorama dei Montecchi, regalando un’atmosfera calda e suggestiva.
Dal comodo disimpegno si accede alle due camere da letto e al bagno principale, finestrato e ben rifinito. Nella zona giorno è presente anche un secondo bagno di servizio, molto pratico nella quotidianità.
Una porta interna conduce alla zona cantina e al ripostiglio, mentre un’ulteriore cantina è stata studiata appositamente per la conservazione dei vini: un ambiente affascinante, facilmente accessibile e perfetto per gli appassionati.

Al piano superiore si trova la zona sottotetto, con una superficie di circa 80 mq, che offre la possibilità di essere trasformata in un secondo appartamento indipendente, ideale per ospiti, familiari o per chi cerca uno spazio aggiuntivo da personalizzare.

Se ami gli spazi grandi ed esterni da sfruttare questa soluzione è perfetta: proprio di fronte all’abitazione si sviluppa uno spazioso porticato, perfetto per posizionare un gazebo e creare una zona esterna estremamente sfruttabile durante tutto l’anno.

Questa casa rappresenta una soluzione rara sul mercato per posizione, indipendenza, vista e potenzialità, perfetta per chi desidera vivere in un contesto tranquillo, panoramico e ricco di charme, senza rinunciare alla comodità del centro paese.

Mostra tutto

Nelle vicinanze

Trasporto pubblico Trasporto pubblico
Montello-Gorlago
Montello-Gorlago
1,9 Km
Ricariche auto elettriche Ricariche auto elettriche
Municipio di Trescore Balneario | RESSOLAR
2,2 Km
Scuole Scuole
Scuole
220 m
Scuole
1,4 Km
Scuola Dell'Infanzia Beato Giovanni XXIII
2,2 Km
Scuola media (secondaria di I grado)
2,3 Km
Scuola elementare (primaria)
2,3 Km
Farmacia Farmacia
Farmacia Regina Pacis
1,8 Km
Farmacia Poma Della Dr.Ssa Simona Poma & C.
2,2 Km
Farmacia
2,4 Km
Ospedali Ospedali
Ospedali
1,9 Km
Supermercati Supermercati
Supermercati
2,4 Km
Negozi Negozi
Negozi
2,3 Km
Bar Bar
Bar
1,9 Km
Ristoranti Ristoranti
Agorà
1,5 Km
Molino dei Frati
1,5 Km
Ristoranti
1,6 Km
LoRo&Co
2,0 Km
Hosteria del Vapore
2,1 Km
Mostra tutto

Caratteristiche

Rif.:
61154673
Piano:
Terra di 2
Totale piani:
2
Box:
2
Posti auto:
1
Camere da letto:
2
Mostra tutto
Prezzo Prezzo
€ 650.000
Rata mutuo Rata mutuo
€ 3.080 / mese
Spese annue Spese annue
€ 0
Proponi il tuo prezzoProponi il tuo prezzo

Classe Energetica

D
D
D
D
D
D
D
D
D
EP globale non rinnovabile:
115.00 kW h/m² anno
EP globale rinnovabile:
11.00 kW h/m² anno
EP invernale del fabbricato:
EP estiva del fabbricato:
Anno di costruzione:
1980
Riscaldamento:
Autonomo
Tipo impianto:
A pavimento
Tipo alimentazione:
Metano

Ti interessa visionare l'immobile?

Fissa un appuntamento  Fissa un appuntamento

Richiedi informazioni

Clicca su Leggi per aprire l'informativa
* Questi campi sono obbligatori

Calcola il tuo mutuo

Semplice e senza impegno
Anticipo

( % )
Mutuo

( % )

pochi semplici passi

inserisci i tuoi dati
Questionario completato
Grazie per aver richiesto un appuntamento senza impegno con un nostro Consulente del Credito e Assicurativo.

Hai inserito correttamente tutti i dati necessari e a breve riceverai una e-mail con un link da convalidare per inviare i tuoi dati.
Affiliato
Agenzia Imm.re Val Cavallina Srl
Via Sibellini, 47 24060 Gorlago (BG)

Il nostro staff


  • Giulia Brolis
    Affiliata

  • Sara Locatelli
    Coordinatrice

  • Harjoban Singh
    Collaboratore
Via Sibellini, 47 24060 Gorlago (BG)
Zona: Gorlago-San Paolo D'Argon-Carobbio degli Angeli-Zandobbio
Mostra su mappa
Affiliato
Agenzia Imm.re Val Cavallina Srl
Via Sibellini, 47 24060 Gorlago (BG)

2026 Tecnocasa Franchising S.p.A. - P. IVA 08365160152 - Via Monte Bianco 60/A 20089 Rozzano (MI). Ogni agenzia ha un proprio titolare ed è autonoma. Privacy policy | Policy utilizzo | Cookie policy